

Casa El Far 1
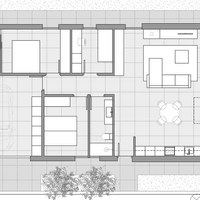
Habitatge unifamiliar de planta baixa amb un disseny contemporani de línies netes, pensat per prioritzar la funcionalitat, l’eficiència i el confort quotidià.
La casa ofereix espais amplis i molt lluminosos, amb una distribució racional que afavoreix una connexió fluida entre interior i exterior. El projecte arquitectònic posa especial atenció a la privacitat i a l’entrada de llum natural, donant com a resultat una llar moderna, equilibrada i acollidora.
És un projecte totalment personalitzable, tant en la distribució com en els acabats, per adaptar-se realment a les necessitats i a l’estil de vida de cada família.
Una proposta d’obra nova clara, eficient i pensada per viure-la amb comoditat des del primer dia.
Preu des de 320.000 €, segons projecte i nivell de personalització.
Ubicació
Acor Construccions













